


















Vă propunem spre vânzare o locuință primitoare și stilată, situată în una dintre cele mai dinamice și căutate zone de lângă Sibiu: Cartierul Arhitecților.
Proprietatea este ideală pentru cei care își doresc confortul unei case, beneficiind în același timp de o compartimentare practică și costuri de întreținere optimizate.
Detalii Principale:
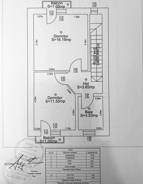
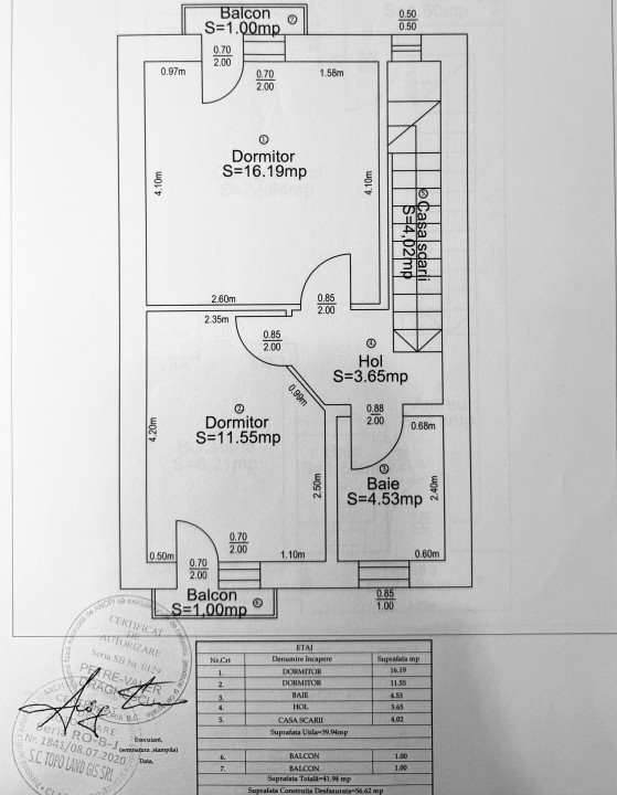
* Suprafață Utilă: 77,24 mp (spațiu bine compartimentat și luminos).
* Configurație: Casă de tip înșiruit, oferind intimitate și un sentiment de comunitate.
* Grădină Proprie: Perfecta pentru relaxare, loc de joacă sau grătar cu prietenii.
* Loc de Parcare: Inclus în prețul de vânzare, situat chiar în fața proprietății.
Dotări și Finisaje:
* Gata de Mutare: Casa se vinde mobilată și utilată complet, exact așa cum apare în fotografiile de prezentare.
* Design Modern: Mobilier ales cu gust, finisaje de calitate și electrocasnice funcționale.
* Confort: Mutarea se poate face imediat, fără a necesita investiții suplimentare sau timp pierdut cu amenajările.
Localizare:
Situată în Cartierul Arhitecților, casa oferă acces facil către orașul Sibiu, fiind aproape de zone comerciale, farmacii, păstrând totodată liniștea specifică unei zone de case.
Preț: 149.990 Euro
Această proprietate reprezintă o investiție excelentă, atât pentru locuință personală, cât și pentru închiriere.